1棟限定・4,890万円(税込)| パッシブエアサイクル工法の高性能モデルハウスを販売

2025年1月に、ふくまちタウン安積南にOPENした昭栄創建のモデルハウス。
このたび【4,890万円(税込)】で販売いたします。(販売形態:仲介)
モデルハウスならではの高級な仕様を、お得な価格&即入居で手に入れられます!
少しでも気になった方は、見学にお越しください。
今の寒い時期は、私たちの住まいの暖かさを存分に感じていただけます!

◼️アクセス
ふくまちタウン安積南
〒963-0105 郡山市安積町長久保3丁目31-2
Googleマップはこちら
土地込みで5,000万円以下!超高性能な「モデルハウス仕様」がこの価格!

安積永盛駅から車で3分程度 / 徒歩で15分ほどのエリア。
17号線や4号線へのアクセスも良好です
【学区】
小学校:安積三小1.5km
中学校:安積ニ中 2.2km
【周辺環境】
・ヨークベニマル安積町店…850m
・かわちや安積店…250m
・セブンイレブン 郡山安積長久保店…400m

昭栄創建は、住む人の健康を第一に考えた設計を大事にしています。
家全体の空気が循環する”パッシブエアサイクル工法”で、温度差や湿気を抑え、結露やカビの発生を防ぎます。
アレルギーの原因となるダニやカビを解消し、健康的な住まいに!

家全体を断熱材で覆う”外張り断熱”
通常の充填断熱よりも断熱性が高いのが特徴です。
さらに、ZEH仕様なので省エネ性も高く、電気代の節約も叶えます。
見学会で「なんで、こんな快適なの?」と実感し、私たちとの家づくりを決意された方が多数います。

自然素材の調湿作用で、カビやダニといったアレルギーの原因を予防。
無垢のタモ材、1階だけでなく2階にも自然素材を使うなど、
ワンランク上の質感を感じていただけます。
モデルハウスギャラリー

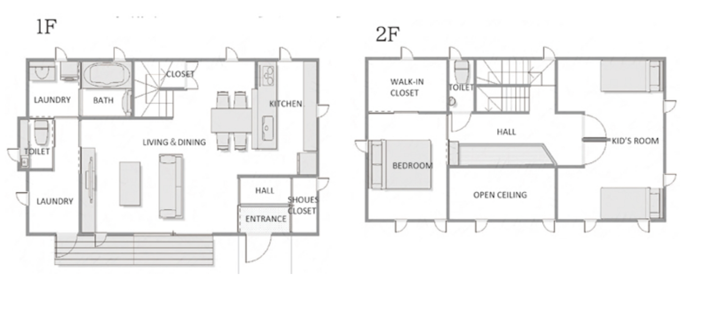
モデルハウス間取り図・概要

家族4人で住むことを想定した、暮らしやすい間取りです。
<POINT>
・駐車スペース:現況2台(3台に変更可能)
・豊富な造作家具
・小屋裏収納
・外部物置(選択可能)
・ロフト階段落下防止
・テレビ&テレビボード付き
将来、400万円「得する」!?「資産」になるマイホームを

断熱性能の低い家は、結露や湿気で構造が劣化し、メンテナンス費用がかさんでしまいます。
・熱出入りが多い「窓」の断熱リフォームをする場合、約150万円
・家全体を断熱リフォームする場合、約400万円かかる可能性が!
※いずれも30坪の家を想定
モデルハウスは高気密・高断熱なので、これらのメンテナンス費用を最小限に抑えられます。
また、将来の売却や賃貸にも適した設計なのもポイントです。
マイホームが「資産」になる。そんな住まいをご提供します。
モデルハウス販売は限定1棟販売!お問合せはお早めに
正直、通常の注文住宅では、
この仕様と安積町という立地で
【4,890万円(税込)】を実現するのは難しいです!
また、実物を確認してから購入できるので
「イメージと違った」といったトラブルも起こりません。
モデルハウスの見学予約は、ブログ下部の予約フォームから簡単1分。
図面や写真では伝わらない、私たちの住まいの「きれいな空気」や「暖かさ」を体感してください!
<電話でのお問合せはこちら>
024-937-3335




